Software de
detailing para estructura metálica y preparación de la producción en taller. Su interfaz intuitiva y la operativa
lógica del programa hacen que sea muy fácil empezar a trabajar con Parabuild.
La
generación de planos de taller está muy automatizada, tanto los detalles como dibujos de conjuntos o de layouts. Las
listas
de materiales son sencillas de personalizar y muy rápidas de generar, así como los archivos para máquinas de control numérico.
El programa se suministra con una librería muy extensa de perfiles y tornillos adaptados a normativa europea y americana.
Parabuild trabaja sobre
AutoCAD o
BricsCAD como motor gráfico, pero mantiene una compatibilidad total con esas plataformas, hasta
el punto que se pueden editar las entidades de Parabuild como objetos nativos de AutoCAD o BricsCAD.
Para
evaluar Parabuild puede solicitar un trial de 30 días.
Podemos enviar también un manual de formación en castellano. Los ejercicios
del trial están muy bien planteados y quizá sean el mejor argumento para
adquirirlo.
Modelo 3D fácil de gestionar:
La rejilla, los pórticos, conexiones, piezas y tornillos están relacionados y se adaptan a los cambios de dimensiones.
La estructura completa puede modificarse con muy poco esfuerzo,
regenerando de forma automática todos los planos y listas de
materiales con total seguridad.
|
|
 |
Conexiones personalizadas:
El programa cuenta con una amplia biblioteca de conexiones. Pero es
posible crear macros de cualquier arreglo o conexión sin necesidad de programación.
Existe un entorno gráfico que permite guardar las nuevas conexiones
parametrizadas. Las propias conexiones de Parabuild están
programadas con este sistema. Es muy importante la consistencia de
las macros para lograr una buena producitividad.
|
| Detección de colisiones en tiempo real:
Las colisiones se van detectando mientras se dibuja. El programa señala en colores aquellos miembros o tornillos que chocan con otros.
También se puede realizar una comprobación en un momento determinado.
El chequeo continuo mejora la productividad y evita acumular errores al final del proyecto.
|
 |
 |
Listas de materiales totalmente personalizadas:
La personalización de listas de materiales, listas de corte o dibujos es muy sencilla y puede realizarla un usuario sin gran experiencia. El proceso está guiado
con plantillas y los resultados se pueden comprobar de forma inmediata.
|
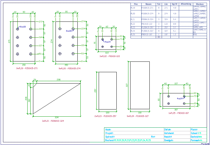
| Dibujos de taller automáticos
Los dibujos de piezas o conjuntos para taller se generan de forma automática. Esto es posible realizarlo de forma masiva en un proyecto o mientras se van terminando
partes de la estructura. El programa gestiona inconsistencias entre el cambio en el modelo 3D y los planos generados anteriormente. Hay disponible una amplia gama
de estilos de acotación y presentaciones de detalles y vistas.
|
 |
 |
Ficheros CNC:
Junto con los dibujos es posible generar el código de control numérico para máquina herramienta. De este modo se puede incorporar el diseño en el trabajo habitual de
taller con las máquinas más comunes del mercado.
|
El programa proporciona un alto nivel de automatización en modelado 3D, lo que incrementa notablemente la productividad al tiempo
que elimina errores. Directamente desde el modelo 3D se generan planos 2D, listas de materiales y ficheros NC, lo cual ayuda a
aumentar la productividad y la precisión del diseño.
El interface de usuario dispone de menús, ribons específicas de Parabuild, botones y ventanas de diálogo generales y específicas de operaciones.
Las opciones de visualización permanecen activas mientras se ajustan los parámetros de conexión u otras operaciones, lo que hace más sencillo su manejo.
El programa tiene una excelente guia de formación, disponible con el trial descargable desde la web.
Parabuild dispone de una amplísima biblioteca de conexiones parametrizadas. Son fáciles de entender y acceder tanto a botones, botones de ribon o
menús. El objeto “conexión” se muestra con un símbolo específico y se pueden editar como objetos inteligentes.
Parabuild es el único programa de detailing estructural que permite al usuario definir cualquier tipo de macro son programación.
El usuario puede crear por sí mismo conexiones personalizadas y complejas macros guardándolas en plantillas de dibujo, sin necesidad
de manejar código de programación. Las plantillas son simples dibujos con la geometria de las macros o las conexiones, con restricciones
y ecuaciones para definir el comportamiento de la conexión.
El programa dispone de una guía de formación para aprender a crear macros de usuario.
Una de las ayudas más interesantes para el modelado 3D es el CONTEXT MODELER. Permite automatizar y realizar con seguridad operaciones
masivas sobre una estructura, manteniendo la relación paramétrica entre distancias entre ejes o alturas de plantas. Se después se hace
un ajusta de alguna de dichas dimensiones todo el modelo se reconstruye de forma automática.
De igual modo las relaciones de posición entre miembros, orientaciones por defecto al poner perfiles en un eje o la selección de la sección
se pueden definir por defecto y ayudar a realizar una operación eficaz y segura.
Existen también opciones para relaciones de placas y perfiles (sub-profiles) y piezas de chapa.
Finalmente existen una serie de herramientas para creación en masa de estructura.
Para la creación de macros de forma gráfica el programa dispone tanto de restricciones geométricas como de un potente editor de ecuaciones.
También se pueden unir macros y elementos como tornillos, taladros, parametros de construcción y similares. Las conexiones y librerías del
programa están realizadas con estas herramientas.
El detector de colisiones de Parabuild comprobará interferencias de forma continua mientras avanzamos en el diseño de la estructura.
Se puede ejecutar también de forma controlada como comprobación. Los colores de las piezas muestran claramente las interferencias,
de modo que se pueden ir resolviendo mientras se trabaja en una solución concreta, sin ir arrastrando el problema hasta el final
del diseño.
Parabuild soporta intercambio BIM con otras aplicaciones mediante archivos IFC. Se pueden importar modelos calculados con programas de análisis
estructural y seguir trabajando las conexiones sobre ellos.
También es posible integrar elementos IFC en entorno Parabuild para completar accesos, escaleras o barandillas. Estos elementos están muy automatizados
y es pueden construir modelos de una forma muy eficiente en poco tiempo.
También es posible integrar Parabuild en flujos de diseño de plantas industriales. Los elementos de racks, estructuras de apoyo y soportes de tubería pueden
ser después procesados de una forma rápida para obtener los planos de taller o ficheros de corte.
Dibujos de taller automáticos:
Parabuild genera dibujos de detalle de calidad de piezas, conjuntos o vistas en 2D a partir del modelo 3D, lo cual asegura
coherencia entre los modelos y la documentación generada, y reduce al máximo los errores. La personalización de los cajetines y
formatos es sencilla y rápida. Las listas de materiales integradas o los estilos de planos son fáciles de configurar.
Dibujos de layouts:
Del mismo modo que los planos de piezas también son fáciles de obtener los dibujos de layout, utilizando vistas del modelo previamente
guardadas. Es posible añadir fácilmente detalles y tablas de piezas y listas de materiales, anotaciones y ajustes de escala.
Listas de materiales:
Hay una gran variedad de listas de materiales definidas de modo estándar en el programa, pero es posible añadir otras muchas personalizadas.
El interface del programa permite navegar fácilmente tanto por las listas como por los planos generados.
Listas de corte:
Entre las listas de materiales podemos generar listas de corte detalladas de perfiles.
Personalización de listas y planos:
La personalización de planos de piezas, listas o cualquier elemento de Parabuild está bien resuelto mediante ventanas de diálogo fáciles de comprender e intuitivas.
Aunque el número de ajustes es laborioso el resultado final es fácil de reeditar y cambiar si es necesario.
Actualización de planos y navegación por la lista de planos generados:
Cuando se efectúa un cambio en el modelo automáticamente aparece reflejado que un plano está desactualizado y necesita ser modificado. El borrado de
versiones anteriores no se realiza de forma automática, sino que se gestiona de modo que si lo desea el usuario pueda ser guardada una versión anterior y
regenerar un nuevo plano de forma automática.